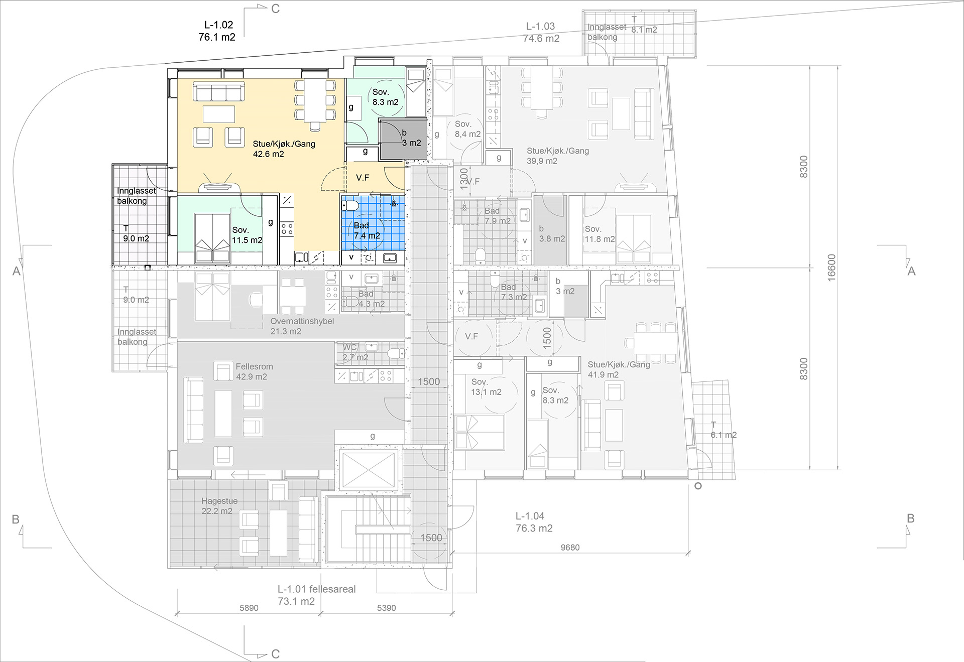
Leilighet 1.2

Leilighetene på Kinotunet har høy teknisk standard og gode materialvalg. Vi har fokus på universell utforming og lavt vedlikeholdsbehov – noe som gjør boligen tilrettelagt for alle livsfaser.

Beboerne i Kinotunet har tilgang til gode fellesarealer, som uteområder, felles stue og hagestue. Perfekt for sosiale sammenkomster, eller for å trekke seg tilbake for ro og rekreasjon.

Pris: 4 850 000 kr

Størrelse: 76,1 m²

Soverom: 2

Planløsning

Planløsningene til leilighetene på Kinotunet er gode og arealeffektive.

Heis fra den private parkeringskjelleren sikrer enkel og trygg tilgang helt frem til leiligheten. Når du åpner døren blir du møtt av en romslig og praktisk gang. Fra gangen har du adkomst til soverom, kjøkken, stue og bad.

En åpen løsning mellom kjøkken og stue skaper god flyt og hyggelig atmosfære mellom to av de viktigste sosiale rommene i huset.

Store vindusflater slipper inn rikelig med lys gjennom hele leiligheten. Innglasset terrasse lar deg nyte uteområdet året rundt, og fletter sammen ute- og innerom.

Soverommene har god plass til oppbevaring og garderobeplass. Tilgang på fellessleilighet i første etasje tillater for ekstra overnattingsplasser om man får gjester.

Boligvelger

Kinotunet består av 13 leiligheter fordelt over 4 etasjer. Boligene har høy bokvalitet og er laget for alle som verd­setter sentral beliggenhet, moderne standard og et sosialt, bekymringsløst liv