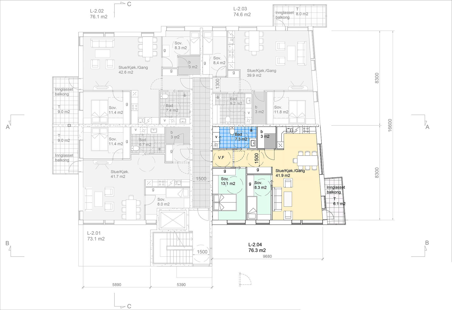
Planløsningene til leilighetene på Kinotunet er gode og arealeffektive.
Heis fra den private parkeringskjelleren sikrer enkel og trygg tilgang helt frem til leiligheten. Når du åpner døren blir du møtt av et hyggelig vindfang. Etterfulgt av en romslig og praktisk gang. Fra gangen har du adkomst til soverom, kjøkken, stue, bod og bad.
En åpen løsning mellom kjøkken og stue skaper god flyt og hyggelig atmosfære mellom to av de viktigste sosiale rommene i huset.
Store vindusflater slipper inn rikelig med lys gjennom hele leiligheten. Innglasset terrasse lar deg nyte uteområdet året rundt, og fletter sammen ute- og innerom.
Soverommene har plass til oppbevaring og garderobeplass. Tilgang på fellessleilighet i første etasje tillater for ekstra overnattingsplasser om man får gjester.