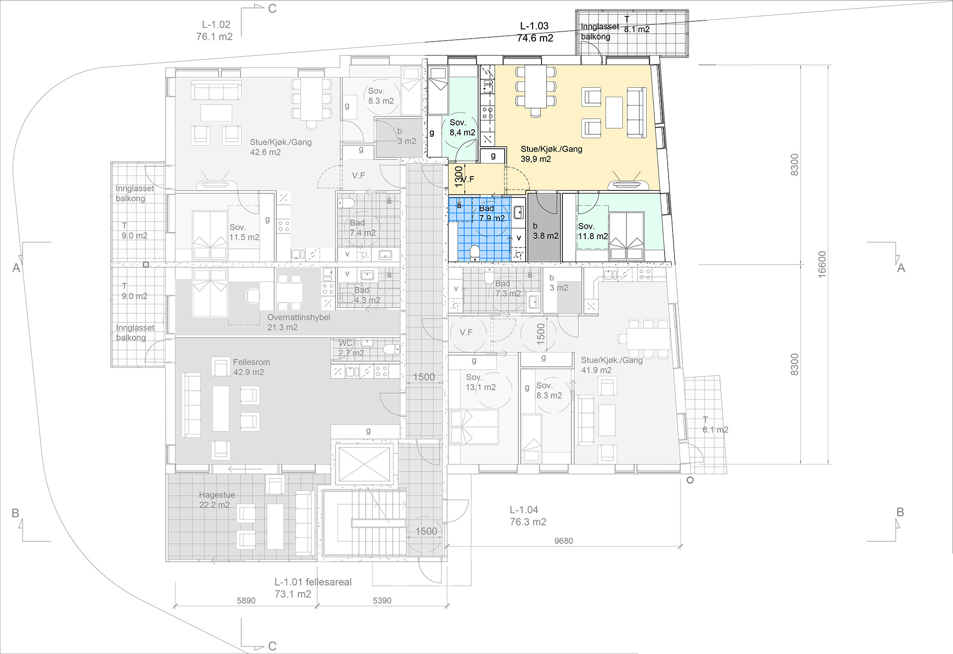
Leilighetene på Kinotunet har høy teknisk standard og gode materialvalg. Vi har fokus på universell utforming og lavt vedlikeholdsbehov – noe som gjør boligen tilrettelagt for alle livsfaser.
Beboerne i Kinotunet har tilgang til gode fellesarealer, som uteområder, felles stue og hagestue. Perfekt for sosiale sammenkomster, eller for å trekke seg tilbake for ro og rekreasjon.


